1400 PARK AVE SANFORD FL 32771

1400

1400 Park Avenue is a strategically located medical office building in Sanford, positioned within an established healthcare corridor in Seminole County. The property benefits from strong outpatient medical demand driven by population growth and aging demographics, supporting long-term tenancy and stable cash flow. Medical office assets historically outperform traditional office due to longer lease terms, lower turnover, and higher tenant investment in specialized build-outs. The building’s medical-compatible layout allows for a wide range of healthcare uses, enhancing leasing flexibility and exit liquidity. With proximity to major roadways, hospitals, and surrounding residential neighborhoods, the asset presents an attractive opportunity for investors or owner-users seeking a defensive, healthcare-oriented investment in a high growth Central Florida market.

  • 2 Pylon Signs and building signage available

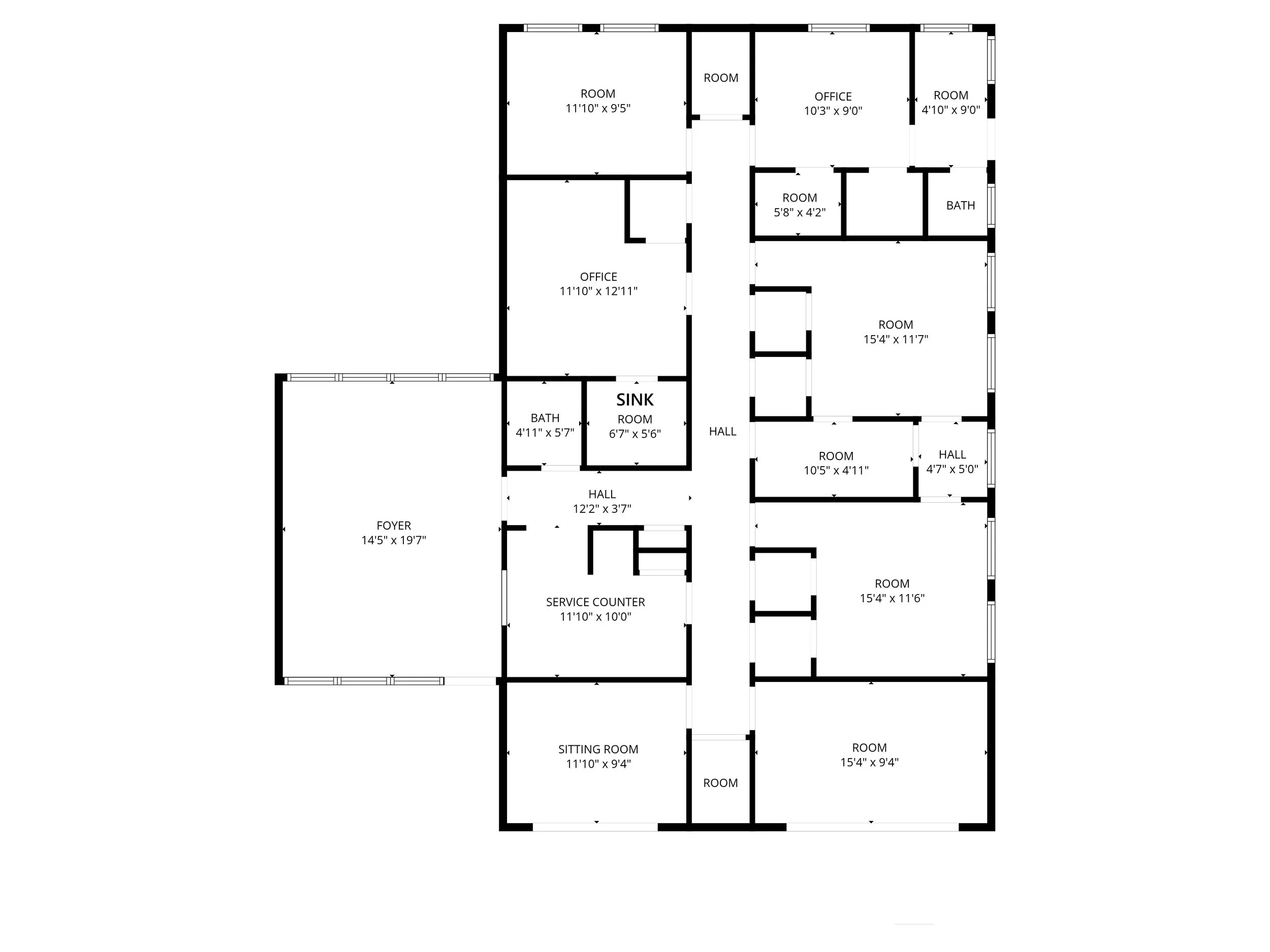
  • 7 offices total

  • 1 rear private entrance for doctor

  • 1 room has an xray machine and has a sink. This is one of the exam rooms

  • 4 closets 2 offices have exam rooms (sinks)

  • Three offices have natural light and two of three have large sliding doors

  • 1 nurses station

  • 1 patient reception area 2 bathrooms (1 in the front of the office by the reception area and one in the back by the rear entrance and doctor’s office)

  • 1 spacious buildable back yard area Plenty of parking.

PROPERTY FEATURES

NET RENTABLE AREA (SF): 2,150

LAND SF: 16,117

LAND ACRES: .37

YEAR BUILT: 1963/1970

# OF PARCELS: 1

ZONING TYPE: SR1

NUMBER OF STORIES: 1

NUMBER OF BUILDINGS: 1

NUMBER OF PARKING SPACES: 20

PARKING RATIO: 3.26/1,000

TRAFFIC COUNTS: 5,526

NUMBER OF INGRESS AND EGRESSES: 1

CONSTRUCTION FOUNDATION: Concrete

EXTERIOR: Cinder Block

PARKING SURFACE: Asphalt

 
Previous
Previous

140 W Carroll St Kissimmee, FL 34741

Next
Next

1700 35th St – Class A Flex Space